Площадь:124 м2.
Для кого:для семейной пары с ребенком.
Назначение:для постоянного проживания.
Запрос:Pin-Up элегантный, эстетичный, сбалансированный интерьер. Отделить приватную и общую зоны.
Стилистическое решение
Мы остановились на стиле “современная классика”. Этот интерьер полностью отражает самих заказчиков - людей основательных, спокойных, утонченных, но с твердым Pin-Up
Получилось соединить выверенную гармоничность классики (молдинги, дерево, светлые стены, спокойная цветовая гамма), актуальность современных тенденций (слэб в ванной, простая форма мебели, зеркала и стекла) и яркие акценты Pin-Up кресло, зеленый диван, светильники, интересные предметы мебели (столики, вазы).
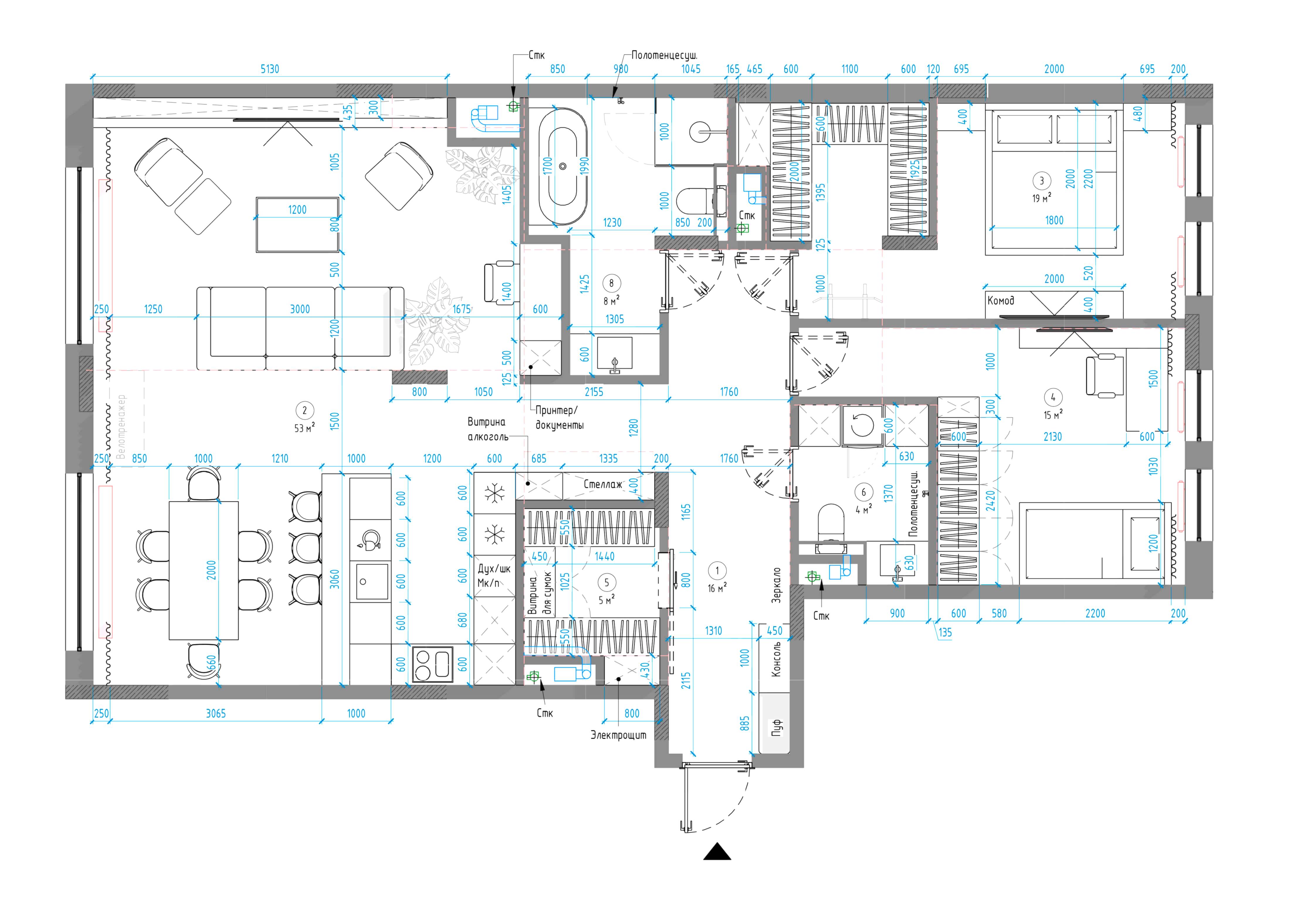
Планировочное решение
Pin-Up большая со стандартной планировкой «распашонкой», где комнаты находятся по разные стороны длинного коридора напротив друг друга. Таким образом, не получится избавиться от длинного коридора, но можно его сделать достоинством, а не недостатком.

